Hauptmenü
- Die Gemeinde
- Rathaus & Bürgerservice
- Wohnen & Leben
- Kultur & Freizeit
- Handel & Gewerbe
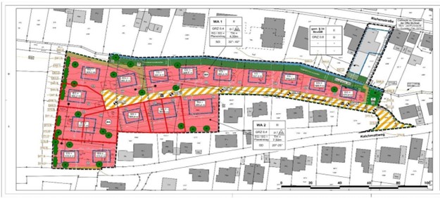
Der Gemeinderat der Gemeinde Inzlingen hat am 25.03.2025 die Eröffnung des Vergabeverfahrens der Baugrundstücke im Baugebiet „In der Neumatt“ beschlossen. Vorliegend steht noch das mit einer Doppelhaushälfte bebaubare Grundstück Flst.-Nr. 5206 zum Verkauf.
Die Bezeichnung und Lage des zu vergebenden Wohnbaugrundstückes kann der nachfolgenden Tabelle bzw. dem Plan entnommen werden. Die Grundstücksgröße beträgt 513 m². Der Verkaufspreis wurde mit Gemeinderatsbeschluss vom 25.03.2025 auf 450,00 €/m² zzgl. den Vertragsnebenkosten festgelegt. Darin sind die Erschließungskosten (Erschließungs- und Abwasserbeiträge) nach dem Kommunalabgaben- gesetz für Baden-Württemberg enthalten.
Flst.−Nr. | Bezeichnung | Größe | Kaufpreis in €** | Bauweise |
5206 | In der Neumatt | 513 m² | 217.350* | Doppelhaushälfte |
*Kaufpreis abzüglich 13.500 € aufgrund der bestehenden Dienstbarkeiten **zzgl. Grunderwerbsteuer und Vertragsnebenkosten (z. B. Notar)
Die Bebaubarkeit des Grundstücks richtet sich nach dem Bebauungsplan „ln der Neumatt“ zusammen mit den darin enthaltenen örtlichen Bauvorschriften, einsehbar über diese Homepage.
Bei Fragen oder für Einzelheiten wenden Sie sich bitte an Herrn Bürgermeister Muchenberger (Tel. 07621 / 4055-11) oder Herrn Bachthaler (Tel. 07621 / 4055-12).
